- 杉並区のリノベーション工務店アズ建設TOP
- リノベーション施工事例
- ヴィンテージなホテルライクルーム-ラワンデザイン- | 文京区
ヴィンテージなホテルライクルーム-ラワンデザイン- | 文京区


| 所在地 | 東京都文京区 | 間取り | ワンルーム |
|---|---|---|---|
| 構造 | RC造 | 延床面積 | 34.8㎡ |
| 築年数(完工時) | 築48年 | 建築費 | 700万円 |
| 施工期間 | 2カ月 | 設計・施工 | アズ建設 |

施工事例からの問い合わせ
都心ながら、窓から見える緑と眺望をポイントに購入されたマンションの一室ワンルーム。
元々の間取りや大きさが弊社の施工事例に似ていることでお問合せいただきました。
この事例のリノベーション後の雰囲気もお好きなもののようで、テイストを寄せていきたいとのことでした。
現地調査をさせて頂き、共用部やマンション全体のデザインもヴィンテージで心地よく、内装となるべく差が出ないようにグラデーションを意識して進めていくこととしました。
現地調査にて
当初のお部屋はというと、綺麗に使われていましたが要所要所で古さを感じる佇まい。
壁には前オーナーのDIYかなと見受けられる板張り。

スイッチやコンセントはNational製(現Panasonic)の金属プレートのものでレトロな雰囲気。もう手に入らないもので我々はテンションが上がってしまします。
(これは使えるぞ・・・)

端が斜めになっている印象的な梁が玄関側とベランダ側に2本通っています。


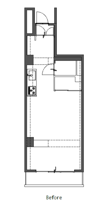
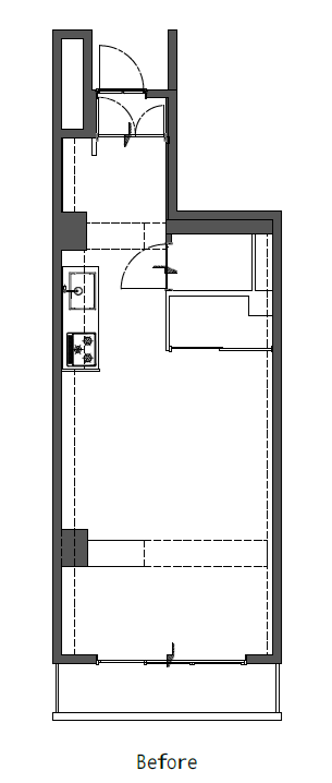
既存の間取りと改修後の間取り
既存の間取りは入口側に水回りがまとまっている一般的なワンルーム。
水回りはバストイレ一体の3点ユニットとミニキッチン。非常にコンパクトなものとなっていて、奥に進むと押入れ、居室部分、広い窓があります。

プランするにあたり手狭ながらも住み心地や世界観を作る為、ワンルームですが用途ごとに区切っていきます。
3点ユニットから洗面室・トイレ・ユニットバス と別々に、
ベッドスペースや造り付けのデスクでその場所ごとの使い方を明確にしました。
ベッドスペースの仕切りになっているのは天井までない間仕切り壁。
ガラスブロックを取り入れ、ドアもつけずにゆるやかに繋いでいます。

共用部のデザインと親和性
内装をカラーリングはマンションエントランス付近のこの空間をモチーフに。
時代特有の色加減とバランス感覚。今の新築では間違いなく選ばないでしょうね。

淡い青のタイルとデザイン性のあるガラスが重厚感と落ち着きをもたらしています。
これらを参考に内装材の選定をし、中心となったのが 深いブルーの床材、赤味を持ったラワン材、ガラスブロックです。



先程のエントランスのデザインから、少しずつトーンを落とし生活することを軸に考えたカラーリングにしました。
そして壁紙はファブリック要素のあるものでマンションが出来た時代を印象付け。タオルバーなどの小物はステンレスでまとめています。

今回はいつもと少し違って全体のカラーリングを先行して決め、色味の持つイメージからまとまるように細部のデザインをしていきました。
完工

ワンルームでコンパクトな分、密度高く拘りの詰まった一室となりました。
キッチンからリビングまでつながっている壁面のラワン合板貼り。
その途中にガラスブロックを挟むことで反対側にあるベットルームとのつながりを生んでいます。

玄関入ってすぐ、住空間とを隔てる造作の建具。
間口が広くなるように2枚のパネル左の袖に納まる設え。それにデザインを乗せているイメージです。

清潔感のある白としたユニットバスに。
3点ユニットだったので不便さがありましたが洗面とトイレを外に出したので清潔感とともに便利になりました。

洗面スペースは床の青みと合わせた化粧板貼りの壁に。
水に強く機能面とデザイン性の両立をしています。
洗面ボウル・水栓はホテルのようなレトロデザイン、
鏡やタオルバーでこちらも実用性とデザインを。


照明は欲しいところに必要なだけ。
直付け照明とブラケット照明を用いて陰影を大切にしながら計画しています。
ダウンライトはグレアレスのものを採用し、光源が直接目に入りません。
落ち着ける空間を作るには照明も大切です。

デスクも製作し、ワークスペースを確保。
デザインもclassicです。

この左端に見えるスイッチは、先程出てきた既存のNational製スイッチ。
流用成功しました。

ワンルームを使用用途ごとに区切っているため迷うことなくレイアウト出来ます。
あるべき場所にあるものを。
用途を決め込んだ設計もリノベーションならではかと。
是非ご相談ください。


解体後

木工事中

木工事中

ガラスブロック施工途中

クロス貼り前

クロス貼り前





































