- 杉並区のリノベーション工務店アズ建設TOP
- リノベーション施工事例
- ヴィンテージにひかるディープブルー -テラコッタの家- | 目黒区
ヴィンテージにひかるディープブルー -テラコッタの家- | 目黒区


| 所在地 | 東京都目黒区 | 間取り | 1LDK+WIC+パントリー |
|---|---|---|---|
| 構造 | RC造 | 延床面積 | 79㎡ |
| 築年数(完工時) | 56年 | 建築費 | 1700万円 |
| 施工期間 | 3カ月 | 設計・施工 | アズ建設 |

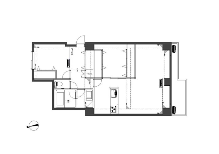
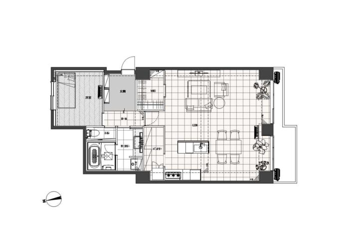
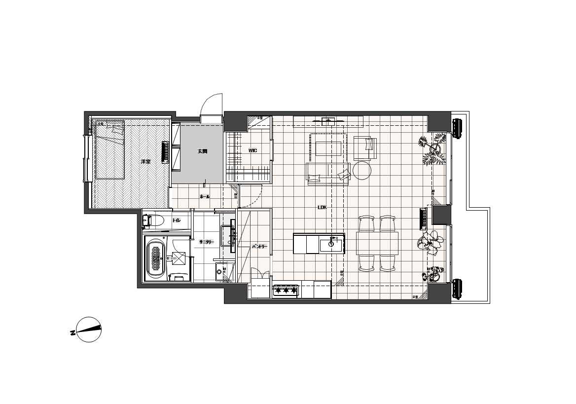
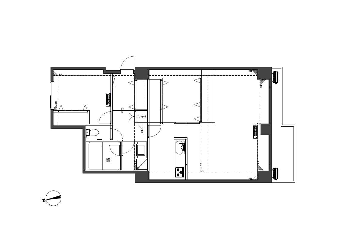
2LDK → 1LDK+収納
目黒川沿いのヴィンテージマンションにて
都内には無数のヴィンテージマンションがあります。
本物件も、立地も佇まいもすごく素敵なヴィンテージマンションの一室。
眺望もよく日の入りが気持ちの良いこの部屋に住むご夫婦とお子様のリノベーション計画がスタートしました。
現状の間取りと今後の生活を考える
現状の間取りは、LDKと寝室、子供部屋。

今どのような暮らしをされていて、今後はどのような生活を理想とされるのか、
聞くまでもなくお施主様の中でのイメージを教えて頂きました。
今は学生であるお子様がもうすぐ巣立たれてご夫婦2人での生活になる。
そのうえでLDKを広く、寝室はコンパクトで、収納はまとめたい といったように間取りや使い方が明確でした。
マンションそのものが持つ味や形を生かしつつ、無駄をなくして単純明快に思い切りの良い計画に。

大LDK、水周り、収納、広い玄関、洋室1部屋 とし、
廊下も無くして生活動線も良くなり、ご夫婦のベッドはひとまず広いリビング内に。
ゆとりある暮らしを目指すこととして決定しました。
素材の選定
メインとしたのは床のテラコッタ。テラコッタ調や風ではなく、正真正銘、素焼きのテラコッタです。
床の大半はこのテラコッタで決定。

これはサンプルですがかなりの厚みがあります。
形やサイズが微妙に異なるので並びや貼る向きは現場判断とし、メンテナンス性を考えて撥水加工も施すことに。
玄関はモルタル金鏝仕上げ、洋室は無垢のナラ材をヘリンボーン張り と空間によって使い分け。
かなり印象的な床に対して壁や天井はというと、
深海を思わせるディープブルーを玄関全体とリビングの一部に。リビングの天井と一面の壁は躯体現しにすることとしました。
築年数のあるマンションでしか見られない表情になるので期待と、開けてビックリが無ければいいなと心配も。
ここにしかないオリジナリティを求め、いざ着工へと向かいます。
解体して・・・
既存でも床は良い無垢材、雰囲気も良く壊すのが勿体ないくらいに完成された部屋でした。


玄関もそもそもが広々空間です。

解体を進めます。


造るのは時間がかかります。
壊すのは一瞬ですね(笑) 毎度そう思わされます。
さらに進めます。


出ました出ました。
開けてビックリでおなじみ、天井の中に張り巡らされた配線。建築当時の躯体への書き込みメモ!!
この時点でお施主様にも状況をみてもらい、どのように進めるか話し合います。
天井を剥き出しにするのでこのままとはいかず、数ある配線の不要なものを撤去しつつ、必要なものはまとめて別ルート(床下や壁の中)を検討し直します。

梁も露出になるので、空いていた穴も埋めつつスッキリしました。
リノベーションは既存ありきなので、問題を解決しながら工事を進めていきます。
完成に向けて
いまある箱に対して壁や床をつくっていくわけですが、
ここで重要なのは改めて水平垂直を見ること。
骨組みの段階でそれが出来ていないと、仕上げで取り付けるものなどにしわ寄せが来ます。慎重に慎重に。

そして今回の主役、テラコッタの登場です!!
かなりの重量のうえに、マンションの上階・・・。
荷揚げだけでも悪戦苦闘です。(真夏)

さらには搬入した中の半分以上が割れたり欠けたりしていることが発覚。。。
こういうことに限って搬入後に気づくものなのです。
その分引き下げ、再度搬入(笑)

ようやく貼り進められました。


造作家具やドアも多数ありましたので、現場で職人さんと調色し、オリジナルの色を検討。
これだ!と思っても1時間後に見ると、なんか違うなぁ・・・。
これを数度繰り返し決定。
仕上げ段階。さらに進めます。

ようやく完成が見えました。もうひと踏ん張り!
最終の調整とクリーニングで、ここから一気に進みます。
たどり着いた理想






まだ家具は入っていない状況ですがこだわり抜いた甲斐があり、圧巻です。
広いリビングもインテリアの自由度を感じます。
ホンモノの質感は、言葉で言い表せないものがありますし、経年変化も楽しみですね。
このしっとりとした既存の趣も残しつつ。

築年数が経ったヴィンテージマンションが都内にも無数にあります。
住まいを考える際には選択肢から除外されがちですが、本物件のように、「それ」でしか実現できない暮らしやデザインは間違いなくあります。
全て新しくするのではなく、どこを残すかという視点で考えると見え方が全く違ったものになりますね。































